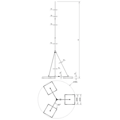
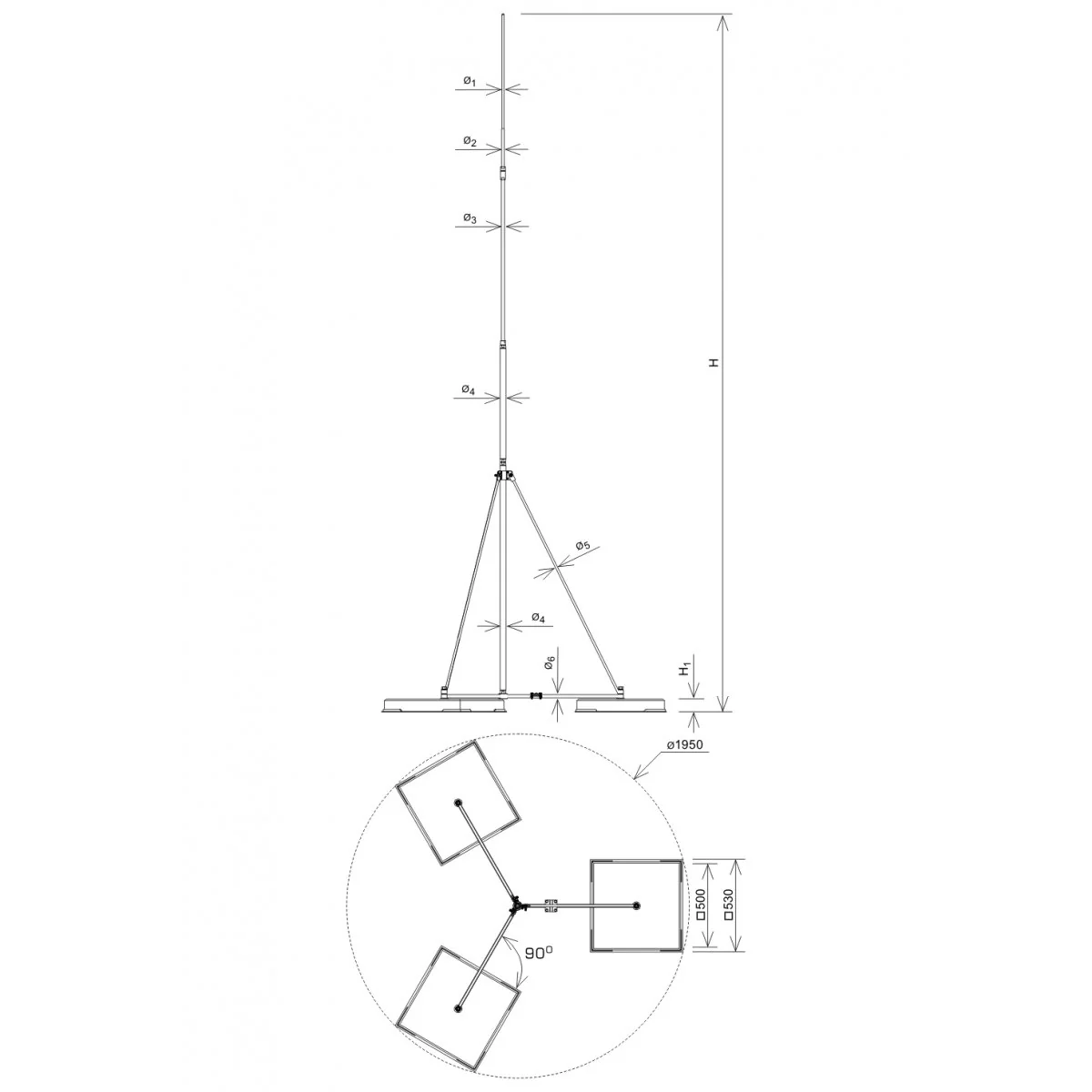
Freistehender Blitzschutzmast auf Stativ, H=3000 mm, RP:I,III H196120

Внутрішній артикул:
AON067ANKO
№ каталоговий:
H196120
Код EAN:
5907770519372
Виробник: AN-KOM
Material: verzinkter Stahl
Windzone RP: I, II, III
Höhe [mm]: 3000
Виріб великого розміру
Ціна:
1 426,19 zł
brutto / шт.
(з ПДВ 23%)
11,88 zł brutto/кг.
Немає на складі
Додати до запиту на пропозицію
Роздрукувати

Опис товару

Freistehende Blitzschutzmasten auf einem Dreifachgewicht (Stativ) schaffen einen geschützten Raum. Sie müssen nicht geklebt werden. Wird komplett mit Zubehör angeboten: PVC-Unterlagen für Betongewichte, Gewichte, Stützen, Turmspitze, Verbindungsstück zum Anschluss des Mastes an das Fangnetz. H1=70mm. Durchmesser 1 = 10 mm, Durchmesser 2 = --mm, Durchmesser 3 = --mm, Durchmesser 4 = 33,7 mm, Durchmesser 5 = 12 mm, Durchmesser 6 = 18 mm.

Технічні дані

  • Material
    verzinkter Stahl
  • Höhe [mm]
    3000
  • PKWIU
    27.12.10.0
  • Windzone RP
    I, II, III
  • Oberflächenschutz
    feuerverzinkt

Інші технічні дані

  • Długość/wysokość
    3000 mm
  • Ausführung
    Fangstange mit Stativ
  • Oberfläche
    feuerverzinkt
  • Hochspannungsfeste isolierte Ausführung
    Ja
  • Durchmesser
    10 ... 33.7 mm
  • Werkstoff
    Stahl
  • Anschluss
    Rundleiter

Інформація про виробника

  • Виробник
    AN-KOM 2 Sp. z o.o.
  • Адреса
    34-120 Andrychów Inwałd, ul.Ks.Władysława Bukowińskiego 15
  • ІПН
    5512653446
Повідомити про помилку