Вибери свою гуртівню
Наші сервіси
www.b2b.el12.pl
www.akademia.el12.pl
www.elstilo.com.pl
Для постачальника
Для клієнта
/ Польща / PLN / Брутто
Всі категорії
Апаратура електрична
Автоматика
Електричне обладнання
Освітлення
Розподільчі шафи, корпуси
Кабелі та проводи
Прокладання проводів та кабелів
З’єднувачі проводів та кабелів
Блискавкозахист
Вентиляція та опалення
Інструменти
Вимірювальні прилади
Моніторинг, сигналізації, домофони
Джерела живлення
Одяг ЗІЗ
Хімія
Cонячні ел/станції
Електронні пристрої
Інше
Товари Plus
Акції
Розпродаж
Запити
Буфер обміну
0
Кошик
0
Увійти / зареєструватися
Логін
Електронна пошта
Пароль
Я забув свій пароль
Вхід
У вас немає облікового запису?
Зареєструватися
Категорії
Виробники
Чому ми
Розпродаж
Акції
Бестселери
Контакт
el12
Прокладання проводів та кабелів
Кабель-канали
Кабель-канали металеві
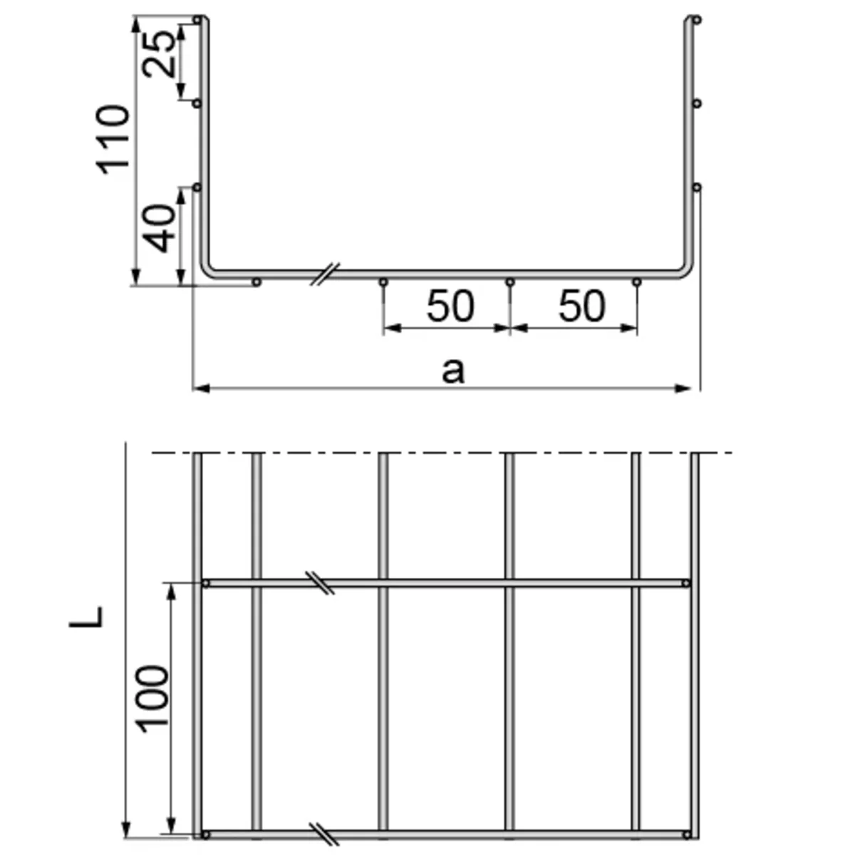
Лоток сітчастий, KDS200H35/3 930120
Внутрішній артикул:
TKM013BAKS
№ каталоговий:
930120
Код EAN:
5900993097580
Натисни на фото щоб збільшити
Виробник:
BAKS
Довжина [мм]:
3000
Матеріал:
Сталь оцинкована
Ширина [мм]:
200
Дивіться повний опис
Виріб великого розміру
Ціна:
77,13 zł
Брутто / шт.
(з ПДВ 23%)
до 4 тижнів
На замовлення
Кількість шт.
(багаторазовий:
1
)
Додай до кошика
Додати до запиту на пропозицію
Додати в буфер обміну
Роздрукувати
Запитайте про товар
Опис товару
Технічні дані
Інформація про виробника
Файли для завантаження
Опис товару
Піддон сітчастий, KDS200H35/3
Розгорнути повний опис ▼
Технічні дані
Довжина [мм]
3000
Ширина [мм]
200
Відповідність нормам
PN-EN 103462011
Матеріал
Сталь оцинкована
Тип
KDS200H35/3
PKWIU
25.93.13.0
Інші технічні дані
Kształt profilu
Profil U
Szerokość
200 mm
Długość
3000 mm
Model
Bez łącznika
Liczba wbudowanych przegród
Brak
System utrzymania sprawności działania E30, E90 w czasie pożaru
НІ
Gatunek materiału
Inne
Kolor
Inne
Wysokość
35 mm
Średnica drutu
3.8 mm
Przekrój użyteczny
4200 mm²
Połączenie bezśrubowe
НІ
Model szerokorozpiętościowy
НІ
Materiał
Stal
Zabezpieczenie powierzchni
Ocynk galwaniczny/elektrolityczny
Ciężar
0.78 kg/m
Розгорнути технічні характеристики ▼
Інформація про виробника
Виробник
BAKS Kazimierz Sielski
Адреса
05-480 Karczew Jagodne 5 Polska
Електронна пошта
baks@baks.com.pl
Файли для завантаження
Завантажити всі файли
Zertifikat-zu-228892.pdf
Deklaracja-Zgodnosci-UE-nr-1_23-CE-standard-PN-EN.pdf
BAKS-TM-BS-EN.pdf
BAKS-TM.pdf
BAKS_9001_Certyfikat_PL.pdf
BAKS_14001_Certyfikat_PL.pdf
Atest-Higieniczny.pdf
Повідомити про помилку