Maszt odgromowy wolnostojący H=2000 mm fi 16/10 RP: I H196020

local index:
AON111ANKO
Catalog No:
H196020
EAN code:
5907770511642
Manufacturer: AN-KOM
Materiał: Stal ocynkowana
Strefa wiatrów RP: I
Średnica masztu [mm]: 2014-10-16 00:00:00
Large-size product
Price:
330,65 zł
brutto / pcs.
(including VAT 23%)
22,04 zł brutto/kg.
Out of stock
Add to inquiry
Print

Product description

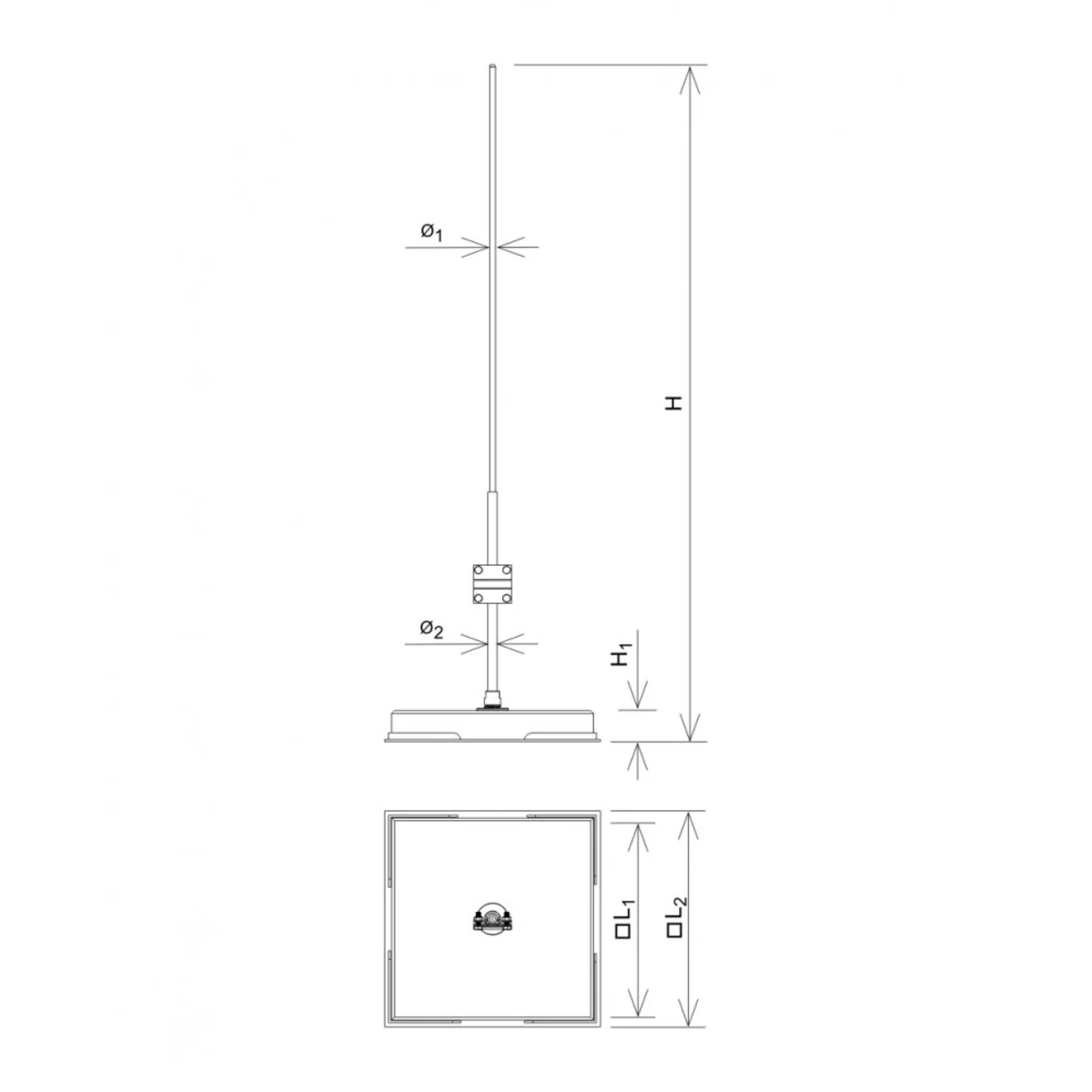
Służą do ochrony urządzeń narażonych na bezpośrednie działanie prądu pioruna. Nie wymagają klejenia oraz stosowania odciągów. Zawsze oferowane są w komplecie z osprzętem: podkładka pcv, obciążnik, iglica, złącze. H1=50mm. L1=350mm L2=380mm. Średnica 1=10mm, średnica 2=16mm.

Technical data

  • Materiał
    Stal ocynkowana
  • Średnica masztu [mm]
    2014-10-16 00:00:00
  • Wysokość [mm]
    2000
  • PKWIU
    27.12.10.0
  • Strefa wiatrów RP
    I
  • Waga [g]
    15000
  • Zabezpieczenie powierzchni
    Ocynk ogniowy

Other technical data

  • Długość/wysokość
    2000 mm
  • Model
    Zwód odgromowy z gwintem
  • Zabezpieczenie powierzchni
    Ocynk ogniowy
  • Izolacja wysokonapięciowa
    tak
  • Średnica
    10 ... 16 mm
  • Materiał
    Stal
  • Rodzaj połączenia
    Przewód okrągły

Manufacturer details

  • Manufacturer
    AN-KOM 2 Sp. z o.o.
  • Address
    34-120 Andrychów Inwałd, ul.Ks.Władysława Bukowińskiego 15
  • Tax identification number
    5512653446
Report an error