Maszt odgromowy wolnostojący H=1500 mm, fi 16/10 RP: I,II,III H196012

Índice local:
AON110ANKO
Número de catálogo:
H196012
Código EAN:
5907770511635
Fabricante: AN-KOM
Materiał: Stal ocynkowana
Strefa wiatrów RP: I, II, III
Średnica masztu [mm]: 2014-10-16 00:00:00
Producto grande
Precio:
295,19 zł
brutto / uds.
(IVA incluido 23%)
19,68 zł brutto/kg.
Fuera de stock
Añadir a solicitud de presupuesto
Imprimir

Descripción del producto

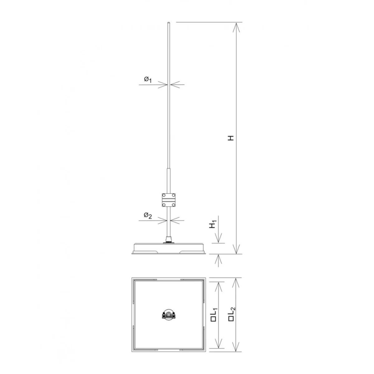
Służą do ochrony urządzeń narażonych na bezpośrednie działanie prądu pioruna. Nie wymagają klejenia oraz stosowania odciągów. Zawsze oferowane są w komplecie z osprzętem: podkładka pcv, obciążnik, iglica, złącze. H1=50mm. L1=350mm L2=380mm. Średnica 1=10mm, średnica 2=16mm.

Datos técnicos

  • Materiał
    Stal ocynkowana
  • Średnica masztu [mm]
    2014-10-16 00:00:00
  • Wysokość [mm]
    1500
  • PKWIU
    27.12.10.0
  • Strefa wiatrów RP
    I, II, III
  • Waga [g]
    15000
  • Zabezpieczenie powierzchni
    Ocynk ogniowy

Otros datos técnicos

  • Długość/wysokość
    1500 mm
  • Model
    Zwód odgromowy z gwintem
  • Zabezpieczenie powierzchni
    Ocynk ogniowy
  • Izolacja wysokonapięciowa
    tak
  • Średnica
    10 ... 16 mm
  • Materiał
    Stal
  • Rodzaj połączenia
    Przewód okrągły

Detalles del fabricante

  • Fabricante
    AN-KOM 2 Sp. z o.o.
  • Dirección
    34-120 Andrychów Inwałd, ul.Ks.Władysława Bukowińskiego 15
  • NIF
    5512653446
Informar de un error