Choose your wholesaler
Our services
www.b2b.el12.pl
www.akademia.el12.pl
www.elstilo.com.pl
For the supplier
For client
/ Poland / PLN / gross
All categories
Electrical apparatus
Automation
Electrical equipment
Lighting
Switchboards and enclosures
Cables and wires
Running cables and wires
Connecting cables and wires
Lightning protection
Ventilation and heating
Tools
Measuring devices
Monitoring, alarms, intercoms
Power sources
Protective and OHS clothing
Chemistry
Photovoltaics
Electronic devices
Other
Plus Products
sale
Outlet
Inquiries
Clipboard
0
Cart
0
Login / Register
Login
E-mail
Password
I forgot my password
Log in
You do not have an account?
Register
Categories
Manufacturers
Why us
Outlet
Promotions
Bestsellers
Contact
el12
Instradamento di cavi e fili
Canali
Canali metallici
Passerella portacavi in rete KDS50H35/3 930112
local index:
TKM244BAKS
Catalog number:
930112
EAN code:
5900993155013
Click on the photo to enlarge
Manufacturer:
BAKS
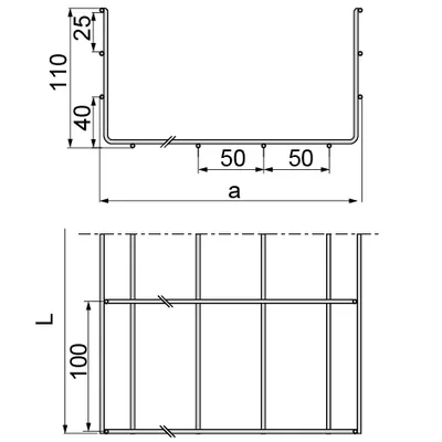
Lunghezza [mm]:
3000
Larghezza [mm]:
50
See full description
Large-size product
Price:
59,10 zł
lordo / pcs.
(including VAT 23%)
up to 4 weeks
On request
Quantity pcs.
(multiplicity:
1
)
Add to cart
Add to inquiry
Add to clipboard
Print
Ask about the product
Product description
Technical data
Manufacturer details
Files to download
Product description
Esecuzione di un percorso via cavo.
Expand full description ▼
Technical data
Lunghezza [mm]
3000
PKWIU
25.93.13.0
Larghezza [mm]
50
Other technical data
Kształt profilu
Profil U
Szerokość
50 mm
Długość
3000 mm
Model
Bez łącznika
Liczba wbudowanych przegród
Brak
System utrzymania sprawności działania E30, E90 w czasie pożaru
No
Gatunek materiału
Inne
Kolor
Inne
Wysokość
35 mm
Średnica drutu
3.8 mm
Przekrój użyteczny
800 mm²
Połączenie bezśrubowe
No
Model szerokorozpiętościowy
No
Materiał
Stal
Zabezpieczenie powierzchni
Ocynk galwaniczny/elektrolityczny
Ciężar
0.46 kg/m
Expand Technical Data ▼
Manufacturer details
Manufacturer
BAKS Kazimierz Sielski
Address
05-480 Karczew Jagodne 5 Polska
E-mail
baks@baks.com.pl
Files to download
Download all files
Zertifikat-zu-228892.pdf
Deklaracja-Zgodnosci-UE-nr-1_23-CE-standard-PN-EN.pdf
BAKS-TM-BS-EN.pdf
BAKS-TM.pdf
BAKS_9001_Certyfikat_PL.pdf
BAKS_14001_Certyfikat_PL.pdf
Atest-Higieniczny.pdf
Report an error