Mástil independiente de protección contra rayos H=2000 mm fi 16/10 RP: I,II,III H196036

Indice locale:
AON109ANKO
Numero di catalogo:
H196036
Codice EAN:
5907770511666
Produttore: AN-KOM
Material: acero galvanizado
Zona de viento de la República de Polonia: Yo, II, III
Diámetro del mástil [mm]: 2014-10-16 00:00:00
Prodotto di grandi dimensioni
Prezzo:
417,78 zł
bruto / pezzi
(inclusa IVA 23%)
10,44 zł bruto/kg.
Esaurito
Aggiungi alla richiesta di preventivo
Stampa

Descrizione del prodotto

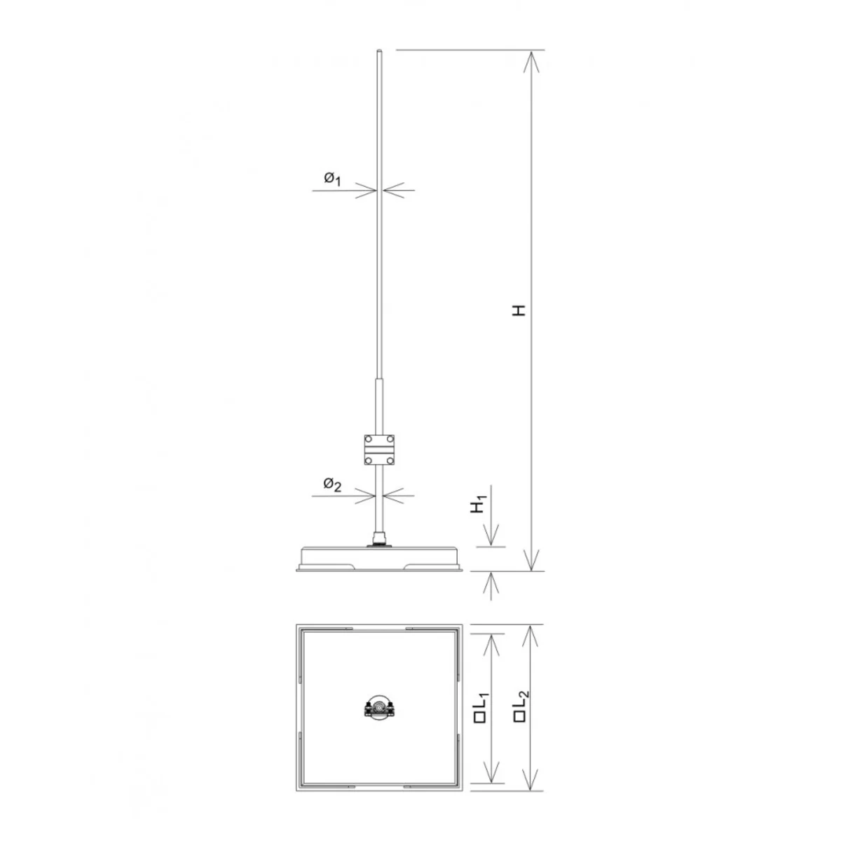
Se utilizan para proteger dispositivos expuestos a la corriente directa del rayo. No requieren pegado ni uso de amarres. Se ofrecen siempre completos con accesorios: arandela de PVC, pesa, aguja, conector. H1=70mm. L1=500mm L2=530mm. Diámetro 1=10 mm, diámetro 2=16 mm.

Dati tecnici

  • Material
    acero galvanizado
  • Diámetro del mástil [mm]
    2014-10-16 00:00:00
  • Altura [mm]
    2000
  • PKWIU
    27.12.10.0
  • Zona de viento de la República de Polonia
    Yo, II, III
  • Peso (gramos]
    40000
  • Protección de superficies
    Galvanizado en caliente

Altri dati tecnici

  • Długość/wysokość
    2000 mm
  • Model
    Zwód odgromowy z gwintem
  • Zabezpieczenie powierzchni
    Ocynk ogniowy
  • Izolacja wysokonapięciowa
  • Średnica
    10 ... 16 mm
  • Materiał
    Stal
  • Rodzaj połączenia
    Przewód okrągły

Dettagli del produttore

  • Produttore
    AN-KOM 2 Sp. z o.o.
  • Indirizzo
    34-120 Andrychów Inwałd, ul.Ks.Władysława Bukowińskiego 15
  • NIP
    5512653446
Segnala un errore