Scegliete il vostro grossista
I nostri servizi
www.b2b.el12.pl
www.akademia.el12.pl
www.elstilo.com.pl
Per il fornitore
Per il cliente
/ Polonia / PLN / lordo
Tutte le categorie
Materiale elettrico
Automazione
Materiale elettrico
Illuminazione
Quadri elettrici e involucri
Cavi e fili
Instradamento di cavi e fili
Collegamento di cavi e fili
Protezione contro i fulmini
Ventilazione e riscaldamento
Utensili
Dispositivi di misurazione
Monitoraggio, allarmi, citofoni
Fonti di energia
Abbigliamento protettivo e sanitario sul lavoro
Chimica
Fotovoltaico
Dispositivi elettronici
Altro
Più prodotti
vendita
Outlet
Richieste di informazioni
Appunti
0
Carrello
0
Accedi / Registrati
Login
Email
Password
Non ricordo la mia password
Accedi
Non hai un account?
Registro
Categorie
Produttori
Perché noi
Outlet
Promozioni
I più venduti
Contatto
el12
Automation
Relays and drivers
Photoelectric relays
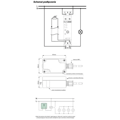
Twilight switch with external hermetic probe AZ-112 PLUS AZ-112-PLUS
Indice locale:
APF030FIFQ
Numero di catalogo:
AZ-112-PLUS
Codice EAN:
5908312591108
Clicca sulla foto per ingrandire
Produttore:
F&F
Depth [mm]:
36
Hysteresis:
15
Power [W]:
0.8
Vedi la descrizione completa
Prezzo:
135,28 zł
gross / pezzi
(inclusa IVA 23%)
Accessibile 21 pezzi
Raccolta in 1h
Quantità pezzi
(multiplo:
1
)
Aggiungi al carrello
Aggiungi alla richiesta di preventivo
Aggiungi agli appunti
Stampa
Chiedi informazioni sul prodotto
Descrizione del prodotto
Dati tecnici
Dettagli del produttore
Imballaggio sfuso
File da scaricare
Descrizione del prodotto
The twilight switch is used to automatically switch on the lighting of streets, squares, exhibitions, advertisements, etc. at dusk and switch off the lighting at dawn.
Espandi la descrizione completa ▼
Dati tecnici
Depth [mm]
36
Power [W]
0.8
ON delay [s]
1-15
load current [A]
<16
Actuation threshold - set [Lx]
7
Mounting method
For screws
Width [mm]
85
Height [mm]
60
Package width [mm]
85
PKWIU
27.12.23.0
Hysteresis
15
Rated voltage [V]
230
Shutdown activation delay [s]
10-30
Actuation threshold - adjustable [Lx]
2-1000
connection
2.5mm screw terminals
Level of security
IP65
Working temperature [°C]
-25-50
Package height [mm]
60
Package weight [kg]
0.16
Altri dati tecnici
Rated voltage
230 V
Max. incandescent lamp load
2000 W
Max. load fluorescent lamp (Duo circuit)
0 VA
Max. switching power LED
250 W
Rated switch current
16 A
Rated voltage light sensor
0 V
Mounting method light sensor
Other
Width in number of modular spacings
1
Degree of protection (IP)
IP20
Rated frequency
50 ... 50 Hz
Max. load fluorescent lamp
600 VA
Max. load fluorescent lamp (parallel compensated)
750 VA
Max. switching current (cos phi = 0.6)
12 A
Adjustment range brightness value
2 ... 1000 lx
Max. conductor length light sensor
10 m
Mounting method
DIN rail
Built-in depth
65 mm
Degree of protection (IP) light sensor
IP65
Ampliare i dati tecnici ▼
Dettagli del produttore
Produttore
F&F Filipowski S.K.
Indirizzo
95-200 Pabianice Konstantynowska 79/81 Polska
Email
biuro@fif.com.pl
Imballaggio sfuso
Una specie di pacchetto
Sztuka
Quantità
1 pezzi
Peso (kg)
0,123
Larghezza (m)
0,056
Lunghezza (m)
0,095
Profondità (m)
0,070
File da scaricare
Scarica tutti i file
Karta-katalogowa.pdf
138900.pdf
138867.pdf
138866.pdf
UE_FF001_18_AZ_AZH_AWZ_dek_zgod_CE.pdf
FF_RoHS_2022.pdf
FF_AZ-112_PLUS_inst_A090217.pdf
Segnala un errore