Вибери свою гуртівню
Наші сервіси
www.b2b.el12.pl
www.akademia.el12.pl
www.elstilo.com.pl
Для постачальника
Для клієнта
/ Польща / PLN / Брутто
Всі категорії
Апаратура електрична
Автоматика
Електричне обладнання
Освітлення
Розподільчі шафи, корпуси
Кабелі та проводи
Прокладання проводів та кабелів
З’єднувачі проводів та кабелів
Блискавкозахист
Вентиляція та опалення
Інструменти
Вимірювальні прилади
Моніторинг, сигналізації, домофони
Джерела живлення
Одяг ЗІЗ
Хімія
Cонячні ел/станції
Електронні пристрої
Інше
Товари Plus
Акції
Розпродаж
Запити
Буфер обміну
0
Кошик
0
Увійти / зареєструватися
Логін
Електронна пошта
Пароль
Запам’ятати мене
Вхід
Я забув свій пароль
У вас немає облікового запису?
Зареєструватися
Категорії
Виробники
Чому ми
Розпродаж
Акції
Бестселери
Контакт
el12
Vedení kabelů a drátů
Kabelové a drátové příslušenství
Dokončovací prvky pro žlaby
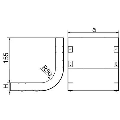
Šířka oblouku 350mm výška 28mm 521535
Внутрішній артикул:
TAK3Y9BAKS
№ каталоговий:
521535
Код EAN:
5900993210415
Натисни на фото щоб збільшити
Виробник:
BAKS
Tloušťka [mm]:
1
Materiál:
Ocel žárově pozinkovaná
Šířka a [mm]:
350
Ціна:
117,07 zł
hrubý / шт.
(з ПДВ 23%)
Доставка за 3 години
до 4 тижнів (робочі дні)
Самовивіз через 1 год
Кількість шт.
(багаторазовий:
1
)
Додай до кошика
Додати до запиту на пропозицію
Додати в буфер обміну
Роздрукувати
Запитайте про товар
Технічні дані
Інформація про виробника
Технічні дані
Tloušťka [mm]
1
Šířka a [mm]
350
PKWIU
25.11.23.0
Materiál
Ocel žárově pozinkovaná
Výška [mm]
28
Розгорнути технічні характеристики ▼
Інформація про виробника
Виробник
BAKS Kazimierz Sielski
Адреса
05-480 Karczew Jagodne 5 Polska
Електронна пошта
baks@baks.com.pl
Повідомити про помилку