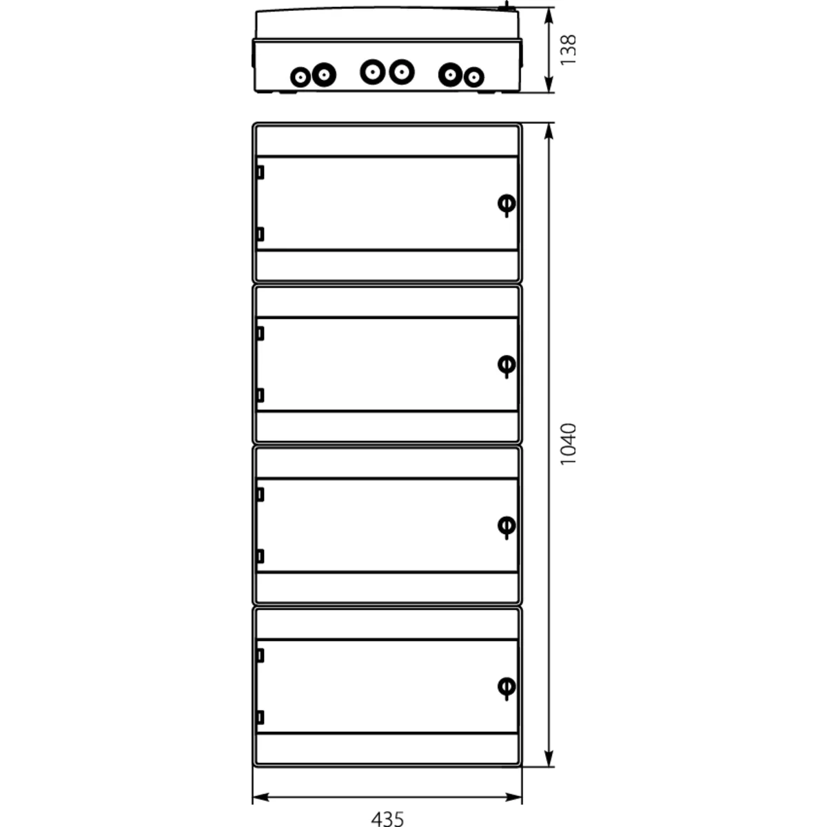
Hermetické rozváděče řady RH "NEO" jsou určeny pro domácí i průmyslové použití s možností instalace nadproudových vypínačů a elektrických zařízení. Jsou k dispozici ve verzi pro povrchovou montáž a jsou široce používány ve venkovních instalacích. Technické vlastnosti: rozvaděče vybavené průhlednými, tónovanými dvířky otevíranými do strany (vlevo nebo vpravo), přizpůsobené pro montáž zámku na klíč, dostupné v bílé barvě, vyrobené z kvalitního materiálu >ABS<, odolné vysokým teplotám do 960oC (žhavení tyčový test - platí pro svorkovnici), provozní stabilita od -25oC do +60oC, nárazuvzdornost (třída IK 07), možnost instalace přístrojů o hloubce 68 a 75 mm, modely 12-modulové a větší, vybavené zeslabením ve stěnách pro kabelové vstupy a instalační trubky, možnost utěsnění dveří, rozvaděče vybavené: koncovkou lišty pro N a PE koleje, montážní úhelník TH 35, samolepící štítek pro popis.