Stožár volně stojící ochrany před bleskem na stativu, V=3000 mm, RP:I,III H196120

Внутрішній артикул:
AON067ANKO
№ каталоговий:
H196120
Код EAN:
5907770519372
Виробник: AN-KOM
Materiál: Pozinkovaná ocel
Větrná zóna Polské republiky: I, II, III
Hmotnost [g]: 120000
Виріб великого розміру
Ціна:
1 426,19 zł
hrubý / шт.
(з ПДВ 23%)
11,88 zł hrubý/кг.
Немає на складі
Додати до запиту на пропозицію
Роздрукувати

Опис товару

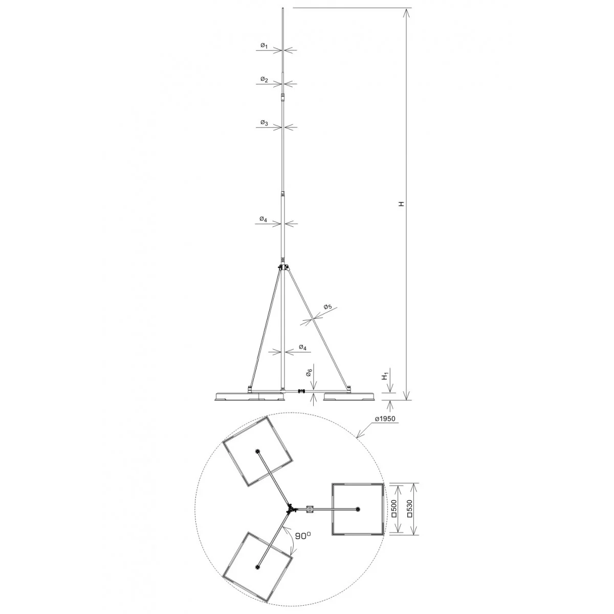
Samostatně stojící stožáry ochrany před bleskem na trojitém protizávaží (stativu) vytvářejí chráněný prostor. Nevyžadují lepení. Nabízeno kompletní s příslušenstvím: PVC podložky pro betonová závaží, závaží, podpěry, trn, konektor pro připojení stožáru k mřížce odvzdušňovače. H1 = 70 mm. Průměr 1=10mm, průměr 2=--mm, průměr 3=--mm, průměr 4=33,7mm, průměr 5=12mm, průměr 6=18mm.

Технічні дані

  • Materiál
    Pozinkovaná ocel
  • Hmotnost [g]
    120000
  • Povrchová ochrana
    Žárově pozinkováno
  • Větrná zóna Polské republiky
    I, II, III
  • Výška [mm]
    3000
  • PKWIU
    27.12.10.0

Інші технічні дані

  • Długość/wysokość
    3000 mm
  • Model
    Maszt odgromowy, trójnóg
  • Zabezpieczenie powierzchni
    Ocynk ogniowy
  • Izolacja wysokonapięciowa
    Ano
  • Średnica
    10 ... 33.7 mm
  • Materiał
    Stal
  • Rodzaj połączenia
    Przewód okrągły

Інформація про виробника

  • Виробник
    AN-KOM 2 Sp. z o.o.
  • Адреса
    34-120 Andrychów Inwałd, ul.Ks.Władysława Bukowińskiego 15
  • ІПН
    5512653446
Повідомити про помилку